×
Titelbild

Beschreibung

In der schönen Gemeinde Ittigen steht dieses vollständig vermietete Mehrfamilienhaus zum Verkauf. Die Liegenschaft befindet sich an einer gesuchten und gut erschlossenen Wohnlage mit hervorragender Anbindung an den öffentlichen Verkehr. Die beiden RBS-Bahnhöfe Papiermühle und Ittigen sind gut zu fuss erreichbar, während sich eine Bushaltestelle nur rund 80 Meter neben der Liegenschaft befindet.

Dank dieser ausgezeichneten Lage profitieren Bewohnerinnen und Bewohner von kurzen Wegen zu Einkaufsmöglichkeiten, Cafés sowie Schulen. Zudem befinden sich Grün- und Freizeitflächen in unmittelbarer Umgebung und bieten eine hohe Wohn- und Lebensqualität.

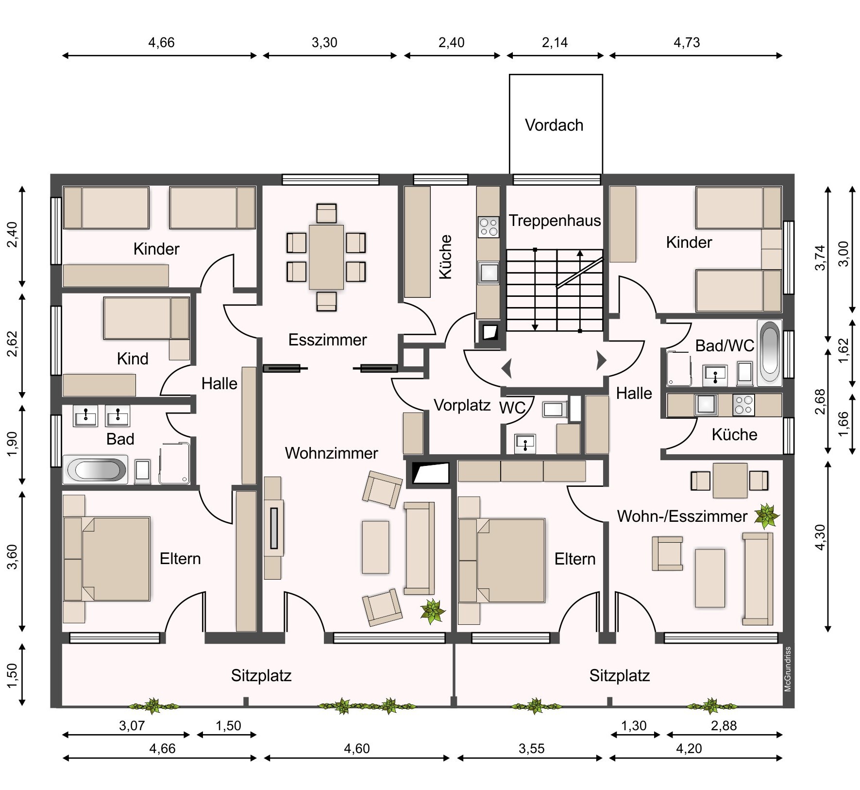
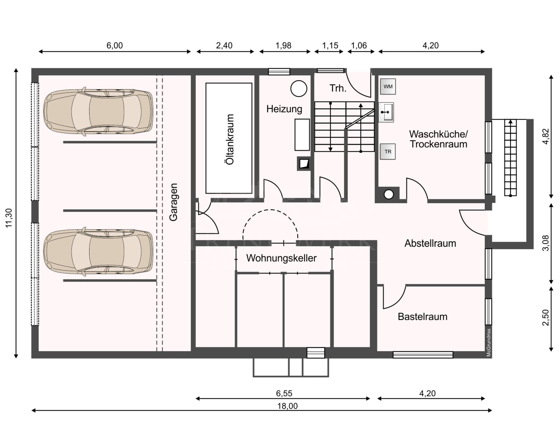
Die gepflegte und laufend unterhaltene Liegenschaft präsentiert sich als interessante Investitionsmöglichkeit mit stabilem Mietertrag, welcher noch weiteres Potenzial aufweist. Das Mehrfamilienhaus umfasst vier Wohnungen mit praktischen Grundrissen und gut nutzbaren Aussenflächen. Jede Wohnung verfügt über ein eigenes Kellerabteil sowie ein separates Estrichabteil. Eine gemeinschaftliche Waschküche sowie vier Garagenplätze steht den Mietparteien ebenfalls zur Verfügung.

Wohnungsmix:

  • Parterre Links: 3.5 Zimmer, separate Küche, Badezimmer mit Badewanne und Terrasse
  • Parterre Rechts: 4.5 Zimmer, separate Küche, Badezimmer mit Dusche und Badewanne, separates WC, Cheminée und Terrasse
  • 1. Obergeschoss Links: 3.5 Zimmer, separate Küche, Badezimmer mit Badewanne und Balkon
  • 1. Obergeschoss Rechts: 4.5 Zimmer, separate Küche, Badezimmer mit Dusche und Badewanne, separates WC, Cheminée und Balkon
  • Jede Wohnung verfügt über einen eigenen Keller sowie einen separates Estrichabteil
  • Eine Waschküche mit Trocknungsraum zur gemeinsamen Nutzung

Das wichtigste auf einen Blick:

  • Bevorzugte Wohnlage in Ittigen
  • Grundstücksfläche mit 802 m²
  • 4 Wohnungen – vollständig vermietet
  • 3 Aussenparkplätze auf dem Grundstück
  • 4 Garagenplätze - vollständig vermietet
  • Funkanlage auf dem Dach für zusätzliche Mietzinseinnahmen
  • Brutto-Rendite von 4%

Die Liegenschaft wird in einem zweistufigen Bieterverfahren verkauft. Mehr Informationen zum Ablauf entnehmen Sie dem beigefügten Terminplan.

Für weitere Informationen zur Liegenschaft laden wir Sie herzlich ein, sich über das untenstehende Kontaktformular zu registrieren, um beim Verkaufsstart von einer schnellen Zusendung zu profitieren.
Selbstverständlich können Sie uns auch unter der Telefonnummer 058 510 84 00 erreichen, um weitere Informationen zu dieser Liegenschaft zu erhalten.

Gemeinde

Ittigen liegt nordöstlich der Stadt Bern und verbindet die Nähe zur Hauptstadt mit einer ruhigen, naturnahen Wohnlage. Die Gemeinde bietet eine ausgezeichnete Verkehrsanbindung mit der RBS, mehreren Buslinien sowie einer schnellen Erreichbarkeit der Autobahn. Gleichzeitig sorgen gut ausgebaute Fuss- und Velowege für eine hohe Alltagsmobilität. Die familienfreundliche Infrastruktur mit Kitas, Schulen und vielfältigen Einkaufsmöglichkeiten macht Ittigen zu einem attraktiven Wohnort. Sportanlagen, Vereine und kulturelle Angebote tragen zusätzlich zu einer hohen Lebensqualität bei und machen Ittigen zu einem lebendigen und attraktiven Wohn- und Arbeitsstandort in der Region Bern.

Kontaktformular

fakultativ