×
Titelbild

Beschreibung

Willkommen in Ihrem neuen Zuhause. Dieses im Jahr 2011 erbaute Haus besticht durch modernes Design, klare Linien und eine angenehme Wohlfühlatmosphäre. Der grosszügige Umschwung bietet viel Platz für Ruhe, Erholung und individuelle Gestaltungsmöglichkeiten. Auf 769 m² Grundstücksfläche und 177 m² Wohnfläche, verteilt auf zwei Etagen, finden Sie Raum für Familie, Gäste und kreative Wohnideen. Helle, offen gestaltete Räume schaffen ein harmonisches Wohngefühl und laden zum Verweilen ein. Ein Haus mit Charakter, Komfort und Stil. Nutzen Sie jetzt die Gelegenheit und sichern Sie sich Ihr neues Zuhause in Alchenstorf.

Der offene Wohn- und Essbereich mit grossen Fensterfronten schafft ein harmonisches Wohngefühl und ermöglicht den direkten Zugang zum Garten. Die moderne weisse Küche mit Kochinsel ist hochwertig ausgestattet und wird schnell zum Mittelpunkt des Familienlebens. Im Erdgeschoss befinden sich ausserdem ein vielseitig nutzbares Zimmer sowie ein elegantes Gäste WC.

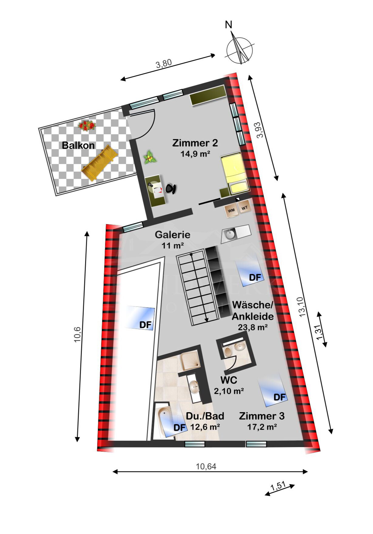
Im Obergeschoss erwarten Sie zwei helle und grosszügige Schlafzimmer, eines davon mit Zugang zum Balkon, sowie ein stilvolles Badezimmer mit Badewanne und Dusche. Eine praktische Waschküche auf derselben Etage sorgt für zusätzlichen Komfort.

Der gepflegte Aussenbereich mit Grillplatz lädt zum Entspannen und Geniessen ein. Zwei Carport Parkplätze sind im Preis enthalten und runden das attraktive Angebot ab.

Lassen Sie sich von diesem besonderen Zuhause begeistern und entdecken Sie in Alchenstorf einen Ort, an dem Wohnen, Wohlfühlen und Lebensqualität harmonisch zusammenfinden.

Die Highlights im Überblick:

  • Grosszügiges offenes Wohnzimmer
  • Offene Küche
  • Gäste-WC im Erdgeschoss
  • Vielseitig nutzbares Zimmer im Erdgeschoss
  • Badezimmer mit Badewanne und Dusche im Obergeschoss
  • Zwei grosszügige Schlafzimmer im Obergeschoss, eines mit Balkonzugang
  • Viel Umschwung mit Grillplatz
  • Praktische Waschküche im Obergeschoss
  • Zwei Carport Parkplätze im Preis inbegriffen

Haben wir Sie neugierig gemacht? Dann zögern Sie nicht, einen unverbindlichen Besichtigungstermin mit Herrn Marc Fiano telefonisch 079 346 22 23 oder per Mail marc.fiano@trendwerk.ch zu vereinbaren.

Gemeinde

Alchenstorf liegt im Herzen des Emmentals im Kanton Bern und zählt rund 640 Einwohnerinnen und Einwohner. Die Gemeinde besticht durch ihre ruhige, ländliche Lage, die gepflegte Landschaft und den typischen Charakter eines Emmentaler Dorfes mit schönen Bauernhäusern und offener Umgebung. Hier verbinden sich Natur, Lebensqualität und Gemeinschaft: Das aktive Dorfleben, zahlreiche Vereine und das Engagement der Bevölkerung schaffen ein herzliches Miteinander. Landwirtschaft und kleinere Gewerbebetriebe prägen die lokale Wirtschaft, während Pendlerinnen und Pendler dank der guten Verkehrsanbindung nach Burgdorf, Koppigen oder Solothurn rasch erreichen.

Kontaktformular

fakultativ